|
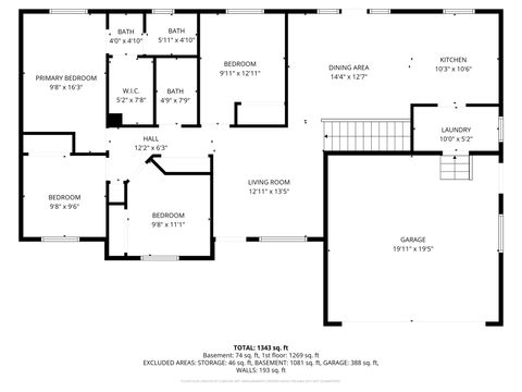
Four bedrooms on the main level means flexibility for however you use the space guests, a home office, a hobby room, or simply room to spread out. Quartz countertops and LVP flooring throughout give the main level a clean, move-in-ready feel that holds up to everyday life. The large fenced yard is ready for whatever you have in mind, and RV parking means you have a place for the extras without the hassle. When you need to get somewhere, you're just minutes from the freeway and everyday shopping , errands and weekend adventures are equally easy from here. Downstairs, the unfinished basement is a blank slate with serious potential for a future game room, home gym, additional living space, or extra storage. No HOA means no restrictions on how you make it your own. This is a home with room to grow in every direction.
| DAYS ON MARKET | 1 | LAST UPDATED | 4/5/2026 |
|---|---|---|---|
| TRACT | WINEGAR ESTATES | YEAR BUILT | 2011 |
| COMMUNITY | Payson; Elk Rg; Salem; Wdhil | GARAGE SPACES | 2.0 |
| COUNTY | Utah | STATUS | Active |
| PROPERTY TYPE(S) | Single Family |
| Elementary School | Wilson |
|---|---|
| Jr. High School | Payson Jr |
| High School | Payson |
| ADDITIONAL DETAILS | |
| AIR | Central Air |
|---|---|
| AIR CONDITIONING | Yes |
| APPLIANCES | Oven, Range, Refrigerator |
| AREA | Payson; Elk Rg; Salem; Wdhil |
| BASEMENT | Full, Yes |
| CONSTRUCTION | Stone, Stucco |
| GARAGE | Yes |
| HEAT | Forced Air |
| INTERIOR | Master Downstairs |
| LOT | 0.28 acre(s) |
| LOT DIMENSIONS | 0.0x0.0x0.0 |
| PARKING | Attached |
| STORIES | 2 |
| STYLE | Ranch/Rambler |
| SUBDIVISION | WINEGAR ESTATES |
| TAXES | 2510 |
| UTILITIES | Natural Gas Available, Natural Gas Connected, Electricity Connected, Sewer Connected, Water Connected |
| VIEW | Yes |
| VIEW DESCRIPTION | Mountain(s) |
MORTGAGE CALCULATOR
TOTAL MONTHLY PAYMENT
0
P
I
*Estimate only
| SATELLITE VIEW |
| / | |
We respect your online privacy and will never spam you. By submitting this form with your telephone number
you are consenting for Olivia
Pelton to contact you even if your name is on a Federal or State
"Do not call List".
Listed with KW Westfield (Excellence)
The multiple listing information is provided by UtahRealEstate.com from a copyrighted compilation of listings. The compilation of listings and each individual listing are © 2026 UtahRealEstate.com, All Rights Reserved. The information provided is for consumers' personal, non-commercial use and may not be used for any purpose other than to identify prospective properties consumers may be interested in purchasing. Information deemed reliable but not guaranteed accurate. Buyer to verify all information.
This IDX solution is (c) Diverse Solutions 2026.

