|
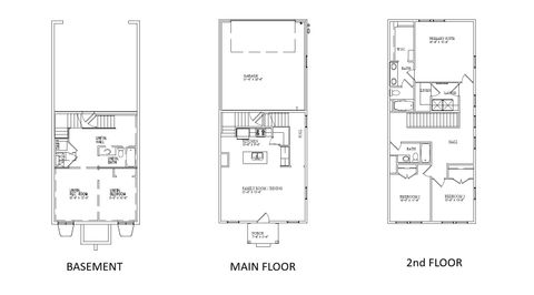
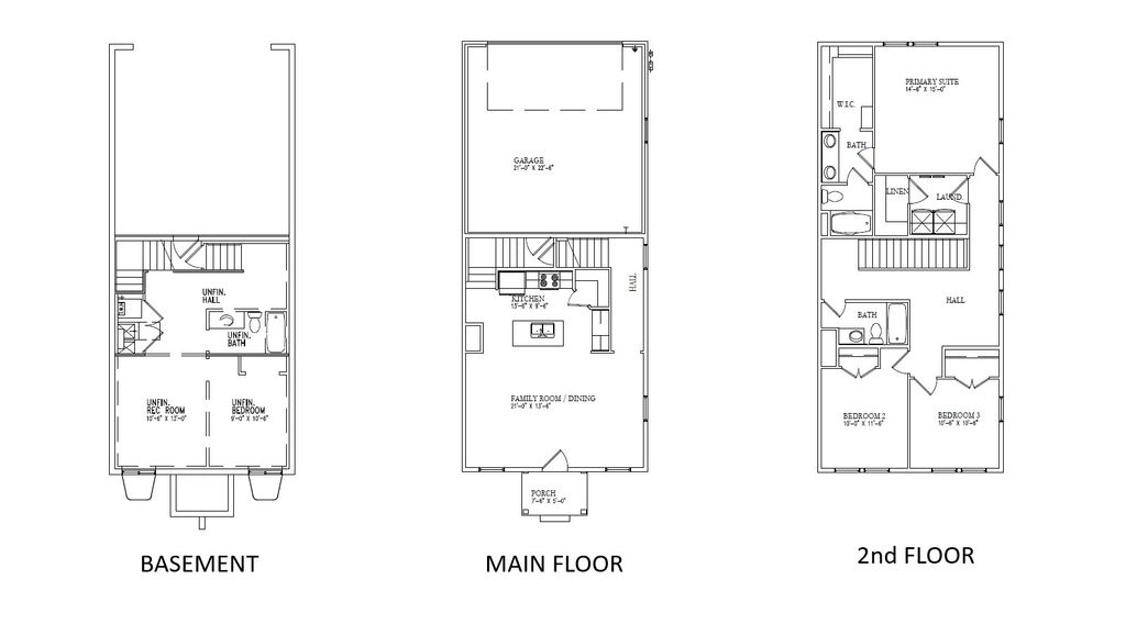
Spring savings are in full bloom at Beacon Pointe townhomes in Saratoga Springs, Utah by Destination Homes. Take advantage of a 3.50% first-year rate, 4.50% in year two, and 5.50% for years 37 on an ARM, or choose a low-rate 30-year fixed option, plus receive a 3% incentive when using preferred lender First Colony Mortgage. This Oxley floor plan townhome in Saratoga Springs offers 2,364 sq. ft. with 3 bedrooms, 2 bathrooms, a 2-car garage, and a full unfinished basement with room to add two additional bedrooms and a third bath. The open-concept design features a modern kitchen with quartz countertops, stainless steel appliances, and stylish cabinetry, while the vaulted primary suite includes a spa-inspired bath and spacious walk-in closet. Enjoy low-maintenance townhome living at Beacon Pointe, where HOA dues include high-speed fiber internet, exterior landscaping, and snow removal. Residents enjoy resort-style amenities including a pool, pickleball courts, playgrounds, parks, and scenic walking trails. Located just steps from the Saratoga Springs Temple and minutes from Utah Lake, Beacon Pointe offers stunning Mount Timpanogos views and convenient access to shopping, dining, and recreation. If you're searching for new construction townhomes in Saratoga Springs Utah, Beacon Pointe offers one of the best locations and values in Utah County.Incentives, rates, and eligibility vary. See Sales Agent for details. Unstaged photos are true to the home but some photos may include staged or similar floorplans; actual features and finishes may vary.
| DAYS ON MARKET | 84 | LAST UPDATED | 4/14/2026 |
|---|---|---|---|
| TRACT | BEACON POINTE | YEAR BUILT | 2026 |
| COMMUNITY | Am Fork; Hlnd; Lehi; Saratog. | GARAGE SPACES | 2.0 |
| COUNTY | Utah | STATUS | Active |
| PROPERTY TYPE(S) | Condo/Townhouse/Co-Op |
| Elementary School | Saratoga Shores |
|---|---|
| Jr. High School | Lake Mountain |
| High School | Westlake |
| PRICE HISTORY | |
| Prior to Mar 17, '26 | $479,990 |
|---|---|
| Mar 17, '26 - Apr 14, '26 | $469,990 |
| Apr 14, '26 - Today | $459,990 |
| ADDITIONAL DETAILS | |
| AIR | Central Air |
|---|---|
| AIR CONDITIONING | Yes |
| AMENITIES | Insurance |
| APPLIANCES | Disposal, Microwave, Oven, Range |
| AREA | Am Fork; Hlnd; Lehi; Saratog. |
| BASEMENT | Full, Yes |
| CONSTRUCTION | Stucco |
| GARAGE | Yes |
| HEAT | Central, Forced Air, Natural Gas |
| HOA DUES | 215|Monthly |
| INTERIOR | Vaulted Ceiling(s), Walk-In Closet(s) |
| LOT | 1307 sq ft |
| LOT DIMENSIONS | 0.0x0.0x0.0 |
| PARKING | Attached |
| STORIES | 3 |
| STYLE | Townhouse; Row-end |
| SUBDIVISION | BEACON POINTE |
| TAXES | 1 |
| UTILITIES | Natural Gas Available, Natural Gas Connected, Electricity Connected, Sewer Connected, Water Connected |
| VIEW | Yes |
| VIEW DESCRIPTION | Mountain(s) |
| ZONING | RES |
MORTGAGE CALCULATOR
TOTAL MONTHLY PAYMENT
0
P
I
*Estimate only
| SATELLITE VIEW |
| / | |
We respect your online privacy and will never spam you. By submitting this form with your telephone number
you are consenting for Olivia
Pelton to contact you even if your name is on a Federal or State
"Do not call List".
Listed with Destination Real Estate
The multiple listing information is provided by UtahRealEstate.com from a copyrighted compilation of listings. The compilation of listings and each individual listing are © 2026 UtahRealEstate.com, All Rights Reserved. The information provided is for consumers' personal, non-commercial use and may not be used for any purpose other than to identify prospective properties consumers may be interested in purchasing. Information deemed reliable but not guaranteed accurate. Buyer to verify all information.
This IDX solution is (c) Diverse Solutions 2026.

