|
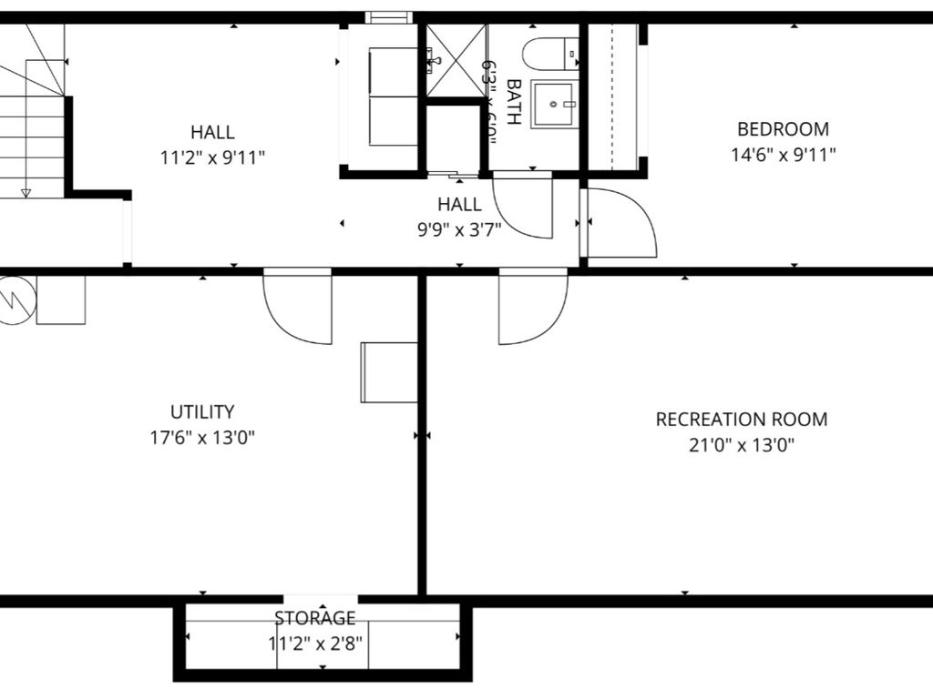
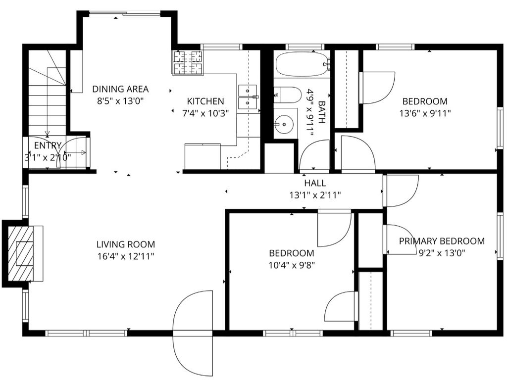
*MOTIVATED SELLER* Welcome to this charming Sugar House brick bungalow-where thoughtful upgrades, rare functionality, and an unbeatable location come together. This home offers a truly unique feature for the area: three spacious bedrooms all on the main level, providing easy living without compromise. Sunlight pours through the home, enhanced by new plantation shutters, newer flooring, and paint. The kitchen is anchored by a Viking gas range, complemented by butcher block counters, a reverse osmosis water filtration system, and water softener-all designed for comfort, efficiency, and quality living. Solar panels help keep utility costs low, while LeafGuard rain gutters and tankless water heater add peace of mind. Downstairs, a large utility room offers incredible flexibility-perfect for converting into an additional bedroom, home office, gym, or creative space. Outside, this property truly shines. A unique feature of dual driveways on each side of the home , one of which is a two-car carport with storage. The fully landscaped backyard is an entertainer's dream, featuring a deck with pergola and ambient lighting, mature trees, and a fully fenced yard for privacy. Dual stone steps lead to a second-level yard to the roof of the carport, delivering elevated views and a peaceful retreat. All of this is set in a central, highly desirable location, just minutes from Sugar House Park, 21st & 21st shopping and dining, top-rated schools, freeway access, the University of Utah, hospitals, Hogle Zoo, local parks-and even a quick drive to Park City from this wonderful tree lined neighborhood. This is Sugar House living at its best!
| DAYS ON MARKET | 23 | LAST UPDATED | 2/2/2026 |
|---|---|---|---|
| TRACT | COUNTRY CLUB HEIGHTS | YEAR BUILT | 1947 |
| COMMUNITY | Salt Lake City; Ft Douglas | COUNTY | Salt Lake |
| STATUS | Active | PROPERTY TYPE(S) | Single Family |
| Elementary School | Beacon Heights |
|---|---|
| Jr. High School | Hillside |
| High School | Highland |
| PRICE HISTORY | |
| Prior to Jan 21, '26 | $739,900 |
|---|---|
| Jan 21, '26 - Today | $729,900 |
| ADDITIONAL DETAILS | |
| AIR | Central Air |
|---|---|
| AIR CONDITIONING | Yes |
| APPLIANCES | Disposal, Gas Range, Humidifier, Oven, Range, Range Hood, Refrigerator |
| AREA | Salt Lake City; Ft Douglas |
| BASEMENT | Full, Yes |
| CONSTRUCTION | Brick |
| FIREPLACE | Yes |
| HEAT | Active Solar, Central, Forced Air, Natural Gas |
| LOT | 8276 sq ft |
| LOT DESCRIPTION | Secluded |
| LOT DIMENSIONS | 0.0x0.0x0.0 |
| PARKING | Covered |
| SEWER | Public Sewer |
| STORIES | 2 |
| STYLE | Bungalow/Cottage |
| SUBDIVISION | COUNTRY CLUB HEIGHTS |
| TAXES | 3028 |
| UTILITIES | Natural Gas Available, Natural Gas Connected, Electricity Connected, Sewer Connected, Water Connected |
| VIEW | Yes |
| VIEW DESCRIPTION | Valley |
MORTGAGE CALCULATOR
TOTAL MONTHLY PAYMENT
0
P
I
*Estimate only
| SATELLITE VIEW |
| / | |
We respect your online privacy and will never spam you. By submitting this form with your telephone number
you are consenting for Olivia
Pelton to contact you even if your name is on a Federal or State
"Do not call List".
Listed with Ever Home Realty LLC
The multiple listing information is provided by UtahRealEstate.com from a copyrighted compilation of listings. The compilation of listings and each individual listing are © 2026 UtahRealEstate.com, All Rights Reserved. The information provided is for consumers' personal, non-commercial use and may not be used for any purpose other than to identify prospective properties consumers may be interested in purchasing. Information deemed reliable but not guaranteed accurate. Buyer to verify all information.
This IDX solution is (c) Diverse Solutions 2026.


