|
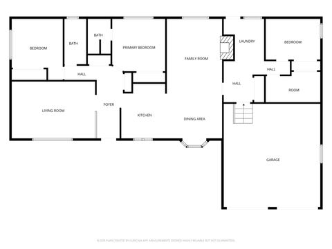
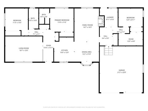
Rare 40-acre farmland opportunity in Spanish Fork with 2 homes and valuable water shares! Includes 40 shares Lake Shore Irrigation and 20 shares Strawberry water (.50 shares per acre). Main home offers 3 beds, 2 baths, office, ope n kitchen/family room with wood-burning fireplace, new flooring, new washer/dryer, newer roof, 2-car garage with cabinet shop, 100 amp service, 460' well and large storage tank; there's also another well. Second home sits on 6.83 acres, built in 1883/remodeled 1927, with new septic, 30-yr shingles, new plywood, newer furnace, and new pump. Est. rent $1,000/mo. Current renter is month-to-month and requires 2-month notice. The farmland is leased out until fall 2025. A unique chance for farm, animals, rental income or future development! Sale includes Parcel numbers #24-065-0030, #24-065-0024, #24-065-0020. Square footage figures are provided as a courtesy estimate only and were obtained from County Records . Buyer is advised to obtain an independent measurement.
| DAYS ON MARKET | 1 | LAST UPDATED | 12/24/2025 |
|---|---|---|---|
| YEAR BUILT | 0 | COMMUNITY | Sp Fork; Mapleton; Benjamin |
| COUNTY | Utah | STATUS | Active |
| PROPERTY TYPE(S) | Lot/Land/Acreage |
| Elementary School | Brockbank |
|---|---|
| Jr. High School | Spanish Fork Jr |
| High School | Spanish Fork |
| ADDITIONAL DETAILS | |
| AIR | None |
|---|---|
| AREA | Sp Fork; Mapleton; Benjamin |
| HEAT | None |
| LOT | 40 acre(s) |
| LOT DESCRIPTION | Level |
| LOT DIMENSIONS | 0.0x0.0x0.0 |
| SEWER | None |
| TAXES | 6340 |
| UTILITIES | Natural Gas Available, Natural Gas Connected, Electricity Connected, Sewer Not Available |
| VIEW | Yes |
| VIEW DESCRIPTION | Mountain(s) |
MORTGAGE CALCULATOR
TOTAL MONTHLY PAYMENT
0
P
I
*Estimate only
| SATELLITE VIEW |
| / | |
We respect your online privacy and will never spam you. By submitting this form with your telephone number
you are consenting for Olivia
Pelton to contact you even if your name is on a Federal or State
"Do not call List".
Listed with Summit Realty, Inc.
The multiple listing information is provided by UtahRealEstate.com from a copyrighted compilation of listings. The compilation of listings and each individual listing are © 2025 UtahRealEstate.com, All Rights Reserved. The information provided is for consumers' personal, non-commercial use and may not be used for any purpose other than to identify prospective properties consumers may be interested in purchasing. Information deemed reliable but not guaranteed accurate. Buyer to verify all information.
This IDX solution is (c) Diverse Solutions 2025.


