|
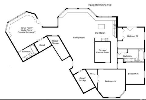
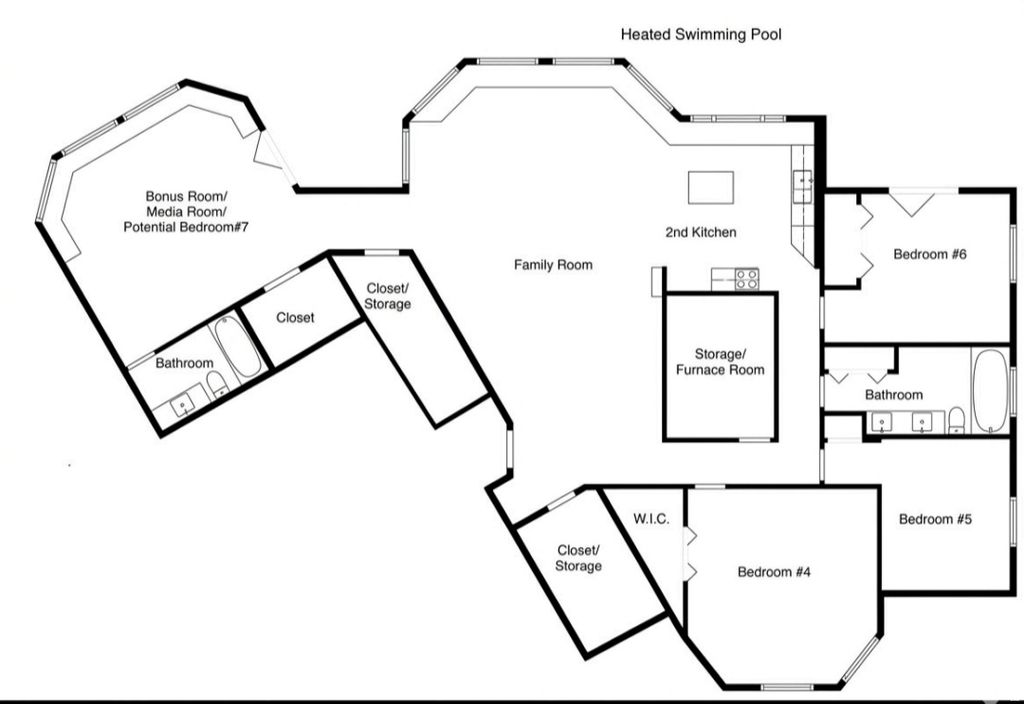
AmazingBluffdale horse property with barn PLUS an extra 1.5 acres which can be leased for only $600 per year! The list of updated items on this property is extensive- New roof and solar panels (52) with a Generac back up battery (14KW) installed in 2021. Electrical service upgraded from 100 amp to 200 amp in the house and barn. New furnace and AC units installed in thehouse and barn in 2021. New tankless water heater and water softener. New pool liner, pump, filter and cover. Remodeled main kitchen with quartzite counter tops and beautiful slate tiling. and new kitchen downstairs. Updated master bathroom that is handicap accessible with walk in shower spa and garden tub. New carport- hay cover by the barn. RV 50 amp plug and water connection by the barn.There is a fenced coral area behind the barn that also connects to the extra 1.5 acres. Unmetered secondary water. LOTS of new fencing around the property. New barn roof. The down stairs has 3 ground level walk out doors and lots of light. Could easily be a Mother in Law apartment with 3 bedrooms.
| DAYS ON MARKET | 126 | LAST UPDATED | 11/15/2025 |
|---|---|---|---|
| TRACT | TATE | YEAR BUILT | 1997 |
| COMMUNITY | WJ; SJ; Rvrton; Herriman; Bingh | GARAGE SPACES | 3.0 |
| COUNTY | Salt Lake | STATUS | Active |
| PROPERTY TYPE(S) | Single Family |
| Elementary School | Bluffdale |
|---|---|
| Jr. High School | Hidden Valley |
| High School | Riverton |
| ADDITIONAL DETAILS | |
| AIR | Central Air |
|---|---|
| AIR CONDITIONING | Yes |
| APPLIANCES | Disposal, Double Oven, Refrigerator, Water Softener Owned |
| AREA | WJ; SJ; Rvrton; Herriman; Bingh |
| BARN/EQUESTRIAN | Yes |
| BASEMENT | Daylight, Full, Walk-Out Access, Yes |
| CONSTRUCTION | Brick |
| EXTERIOR | Balcony |
| FIREPLACE | Yes |
| GARAGE | Yes |
| HEAT | Central, Natural Gas |
| INTERIOR | In-Law Floorplan, Vaulted Ceiling(s), Walk-In Closet(s) |
| LOT | 1.24 acre(s) |
| LOT DIMENSIONS | 0.0x0.0x0.0 |
| PARKING | Attached |
| POOL | Yes |
| POOL DESCRIPTION | Heated, In Ground, Private |
| STORIES | 2 |
| STYLE | Ranch/Rambler |
| SUBDIVISION | TATE |
| TAXES | 6885 |
| UTILITIES | Natural Gas Available, Natural Gas Connected, Electricity Connected, Sewer Connected, Water Connected |
| ZONING | 1144 |
MORTGAGE CALCULATOR
TOTAL MONTHLY PAYMENT
0
P
I
*Estimate only
| SATELLITE VIEW |
| / | |
We respect your online privacy and will never spam you. By submitting this form with your telephone number
you are consenting for Olivia
Pelton to contact you even if your name is on a Federal or State
"Do not call List".
Listed with Intermountain Properties
The multiple listing information is provided by UtahRealEstate.com from a copyrighted compilation of listings. The compilation of listings and each individual listing are © 2026 UtahRealEstate.com, All Rights Reserved. The information provided is for consumers' personal, non-commercial use and may not be used for any purpose other than to identify prospective properties consumers may be interested in purchasing. Information deemed reliable but not guaranteed accurate. Buyer to verify all information.
This IDX solution is (c) Diverse Solutions 2026.


