|
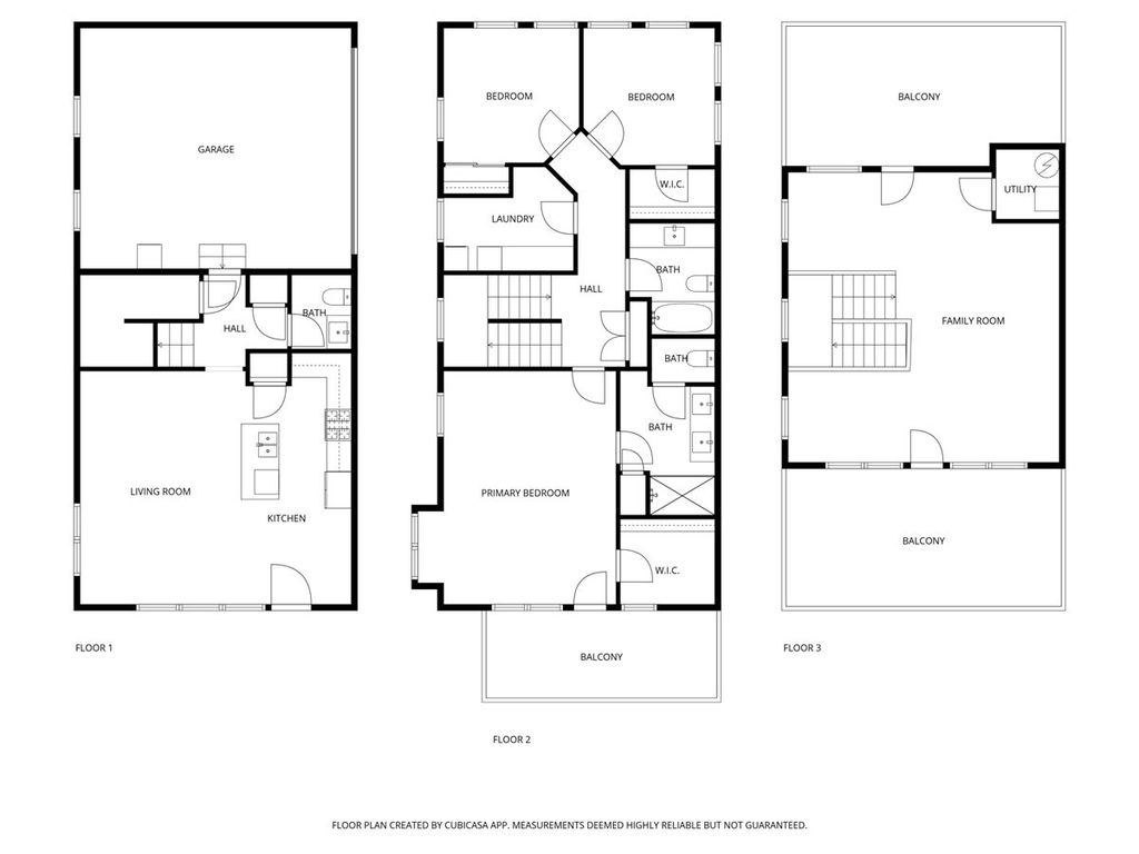
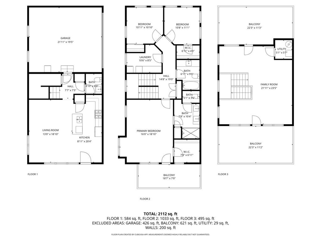
~Property Description~ This row-end townhome in Marina Village was constructed in 2024 by Ivory Homes. Featuring three bedrooms and two and a half bathrooms, the property is conveniently located near the Oquirrh Lake boat launch and has been enhanced with $20,000 in upgrades, including plantation shutters throughout and epoxy flooring in the garage. ~Exceptional Living and Entertaining Spaces~ The third-floor family room and two rooftop decks create an inviting environment for entertaining guests. With abundant outdoor living space, residents can enjoy a large fenced yard that requires minimal maintenance. ~Prime Location and Lifestyle~ Situated just steps from SoDa Row and only minutes from Downtown Daybreak and The Ballpark at America First Square, this home places you at the heart of trails, dining options, and lake access. The location and amenities make this property suitable for every stage of life.
DAYS ON MARKET | 2 | LAST UPDATED | 10/15/2025 |
---|---|---|---|
TRACT | DAYBREAK MARINA | YEAR BUILT | 2024 |
COMMUNITY | WJ; SJ; Rvrton; Herriman; Bingh | GARAGE SPACES | 2.0 |
COUNTY | Salt Lake | STATUS | Active |
PROPERTY TYPE(S) | Condo/Townhouse/Co-Op |
Elementary School | Daybreak |
---|---|
High School | Herriman |
ADDITIONAL DETAILS | |
AIR | Central Air |
---|---|
AIR CONDITIONING | Yes |
APPLIANCES | Disposal, Dryer, Gas Oven, Gas Range, Microwave, Oven, Range, Refrigerator, Washer |
AREA | WJ; SJ; Rvrton; Herriman; Bingh |
BASEMENT | None |
CONSTRUCTION | Other, Stucco |
EXTERIOR | Balcony, Lighting |
GARAGE | Yes |
HEAT | Central, Forced Air, Natural Gas |
HOA DUES | 319|Monthly |
INTERIOR | Vaulted Ceiling(s), Walk-In Closet(s) |
LOT | 436 sq ft |
LOT DESCRIPTION | Corner Lot |
LOT DIMENSIONS | 0.0x0.0x0.0 |
PARKING | Attached |
POOL | Yes |
POOL DESCRIPTION | In Ground, Private |
SEWER | Public Sewer |
STORIES | 3 |
STYLE | Townhouse; Row-end |
SUBDIVISION | DAYBREAK MARINA |
TAXES | 737 |
UTILITIES | Natural Gas Available, Natural Gas Connected, Electricity Connected, Sewer Connected, Water Connected |
VIEW | Yes |
VIEW DESCRIPTION | Mountain(s) |
ZONING | 1301 |
MORTGAGE CALCULATOR
TOTAL MONTHLY PAYMENT
0
P
I
*Estimate only
SATELLITE VIEW |
/ | |
We respect your online privacy and will never spam you. By submitting this form with your telephone number
you are consenting for Olivia
Pelton to contact you even if your name is on a Federal or State
"Do not call List".
Listed with KW Utah Realtors Keller Williams
The multiple listing information is provided by UtahRealEstate.com from a copyrighted compilation of listings. The compilation of listings and each individual listing are © 2025 UtahRealEstate.com, All Rights Reserved. The information provided is for consumers' personal, non-commercial use and may not be used for any purpose other than to identify prospective properties consumers may be interested in purchasing. Information deemed reliable but not guaranteed accurate. Buyer to verify all information.
This IDX solution is (c) Diverse Solutions 2025.