|
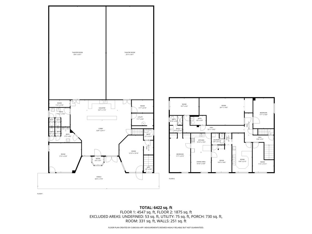
Own a Piece of Main Street History! Here's your chance to bring new life to the legendary "Sticky Shoe" theater-an iconic building right in the heart of historic downtown American Fork. This unique property features the original auditorium, now split into two separate theaters-each with its own screen and stage-plus two street-facing retail spaces (previously home to a barber shop and a photo studio). Upstairs, you'll find a charming 2-bedroom, 1-bath apartment perfect for owner occupancy or additional rental income. The building also includes three individual office spaces, offering even more flexibility and potential revenue. Whether you keep it as a nostalgic movie theater, convert it into a live performance venue, community center, or one-of-a-kind event space-the possibilities here are endless. Don't miss this rare opportunity to own a truly unforgettable building with history, character, and untapped potential.
DAYS ON MARKET | 24 | LAST UPDATED | 9/30/2025 |
---|---|---|---|
YEAR BUILT | 1950 | COMMUNITY | Am Fork; Hlnd; Lehi; Saratog. |
COUNTY | Utah | STATUS | Active |
PROPERTY TYPE(S) | Commercial |
ADDITIONAL DETAILS | |
AIR | Central Air, Heat Pump |
---|---|
AIR CONDITIONING | Yes |
APPLIANCES | Oven, Range, Refrigerator |
AREA | Am Fork; Hlnd; Lehi; Saratog. |
HEAT | Forced Air, Heat Pump, Natural Gas |
LOT | 0.54 acre(s) |
LOT DIMENSIONS | 0.0x0.0x0.0 |
PARKING | Paved |
TAXES | 6199 |
UTILITIES | Natural Gas Available |
ZONING | CC-1 |
MORTGAGE CALCULATOR
TOTAL MONTHLY PAYMENT
0
P
I
*Estimate only
SATELLITE VIEW |
/ | |
We respect your online privacy and will never spam you. By submitting this form with your telephone number
you are consenting for Olivia
Pelton to contact you even if your name is on a Federal or State
"Do not call List".
Listed with Avenue Real Estate Services
The multiple listing information is provided by UtahRealEstate.com from a copyrighted compilation of listings. The compilation of listings and each individual listing are © 2025 UtahRealEstate.com, All Rights Reserved. The information provided is for consumers' personal, non-commercial use and may not be used for any purpose other than to identify prospective properties consumers may be interested in purchasing. Information deemed reliable but not guaranteed accurate. Buyer to verify all information.
This IDX solution is (c) Diverse Solutions 2025.