|
"Kendall" Sample. Our prices and quality can't be beat. We have been building homes for more than 25 years, this makes us one of the most experienced builders. Choose from many of our well designed plans. All floor plans are appealing from the inside and out. Our lightning fast construction schedule will have you into your new home in 5-6 months. Call agent for plans, pricing and maps. Call for Model Home locations, open Mon-Sat 12-6. Lender incentive available. Buyer to verify all information.
| DAYS ON MARKET | 93 | LAST UPDATED | 9/10/2025 |
|---|---|---|---|
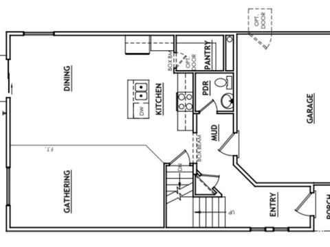
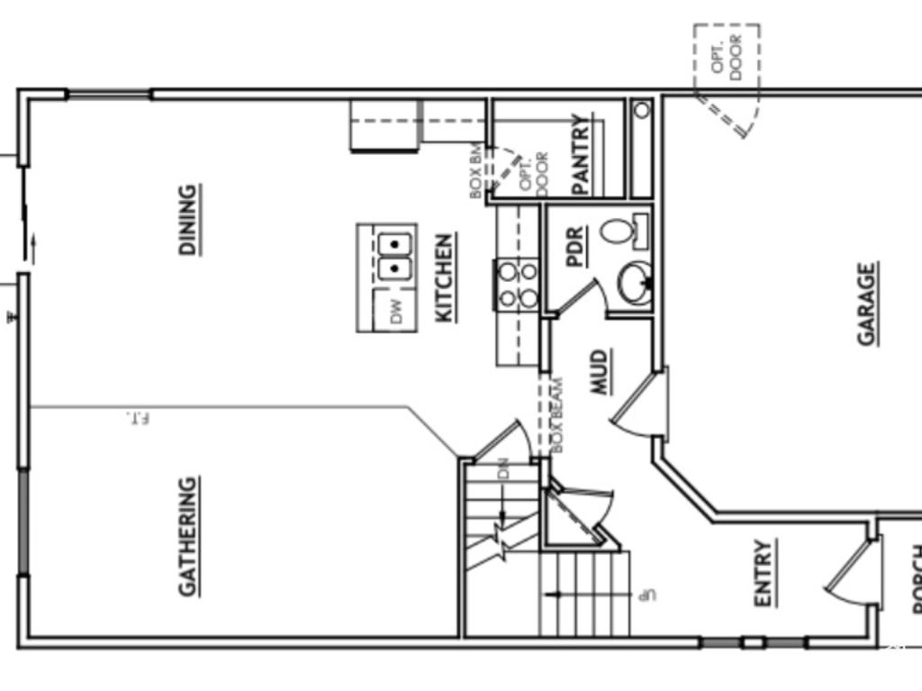
| TRACT | MAPLETON VILLAGE | YEAR BUILT | 2026 |
| COMMUNITY | Sp Fork; Mapleton; Benjamin | GARAGE SPACES | 2.0 |
| COUNTY | Utah | STATUS | Active |
| PROPERTY TYPE(S) | Single Family |
| Elementary School | Spanish Oaks |
|---|---|
| Jr. High School | Mapleton Jr |
| High School | Maple Mountain |
| ADDITIONAL DETAILS | |
| AIR | Central Air |
|---|---|
| AIR CONDITIONING | Yes |
| AREA | Sp Fork; Mapleton; Benjamin |
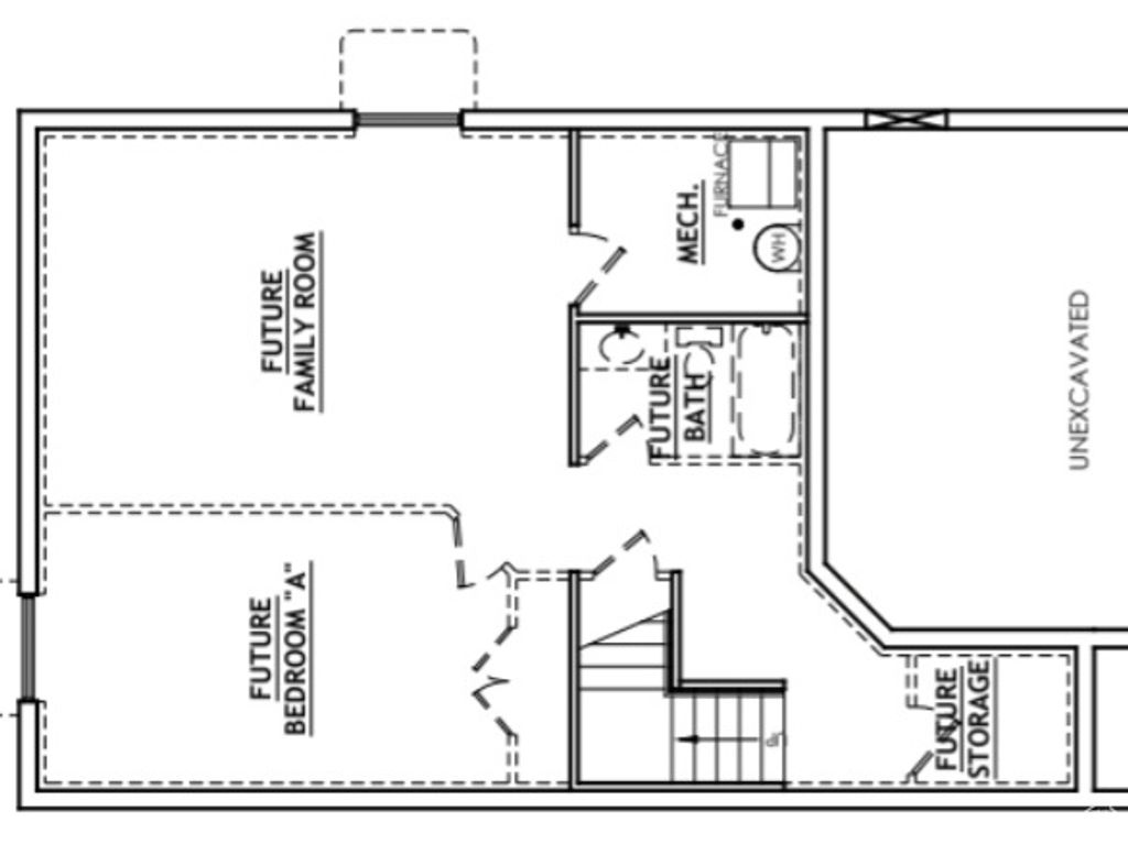
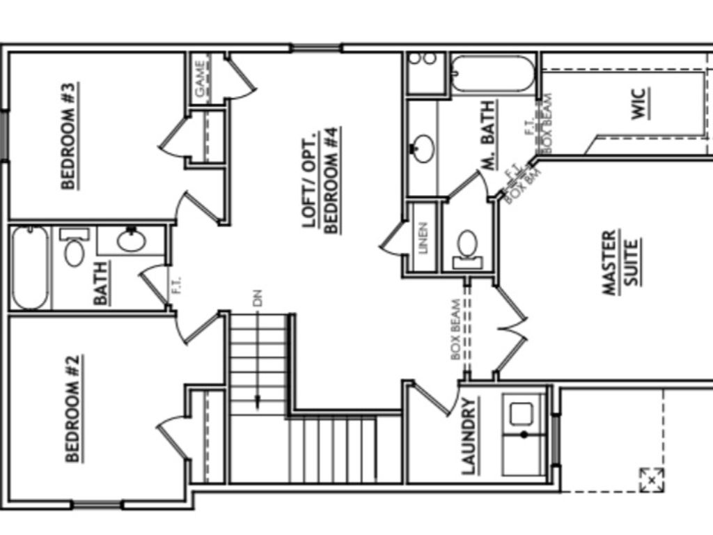
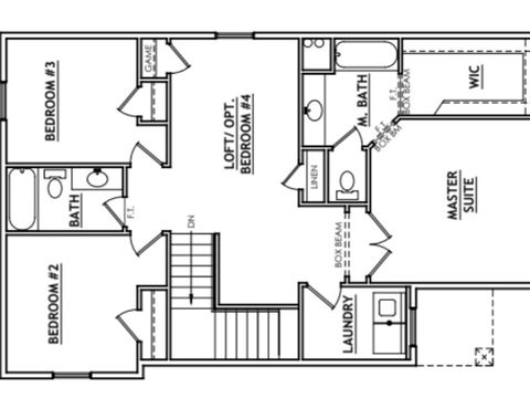
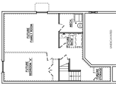
| BASEMENT | Full, Yes |
| GARAGE | Yes |
| HEAT | Central, Natural Gas |
| HOA DUES | 85|Monthly |
| LOT | 6098 sq ft |
| LOT DIMENSIONS | 0.0x0.0x0.0 |
| PARKING | Attached |
| STORIES | 3 |
| STYLE | Stories: 2 |
| SUBDIVISION | MAPLETON VILLAGE |
| UTILITIES | Natural Gas Available, Natural Gas Connected, Electricity Connected, Sewer Connected, Water Connected |
MORTGAGE CALCULATOR
TOTAL MONTHLY PAYMENT
0
P
I
*Estimate only
| SATELLITE VIEW |
| / | |
We respect your online privacy and will never spam you. By submitting this form with your telephone number
you are consenting for Olivia
Pelton to contact you even if your name is on a Federal or State
"Do not call List".
Listed with KW WESTFIELD
The multiple listing information is provided by UtahRealEstate.com from a copyrighted compilation of listings. The compilation of listings and each individual listing are © 2025 UtahRealEstate.com, All Rights Reserved. The information provided is for consumers' personal, non-commercial use and may not be used for any purpose other than to identify prospective properties consumers may be interested in purchasing. Information deemed reliable but not guaranteed accurate. Buyer to verify all information.
This IDX solution is (c) Diverse Solutions 2025.


