|
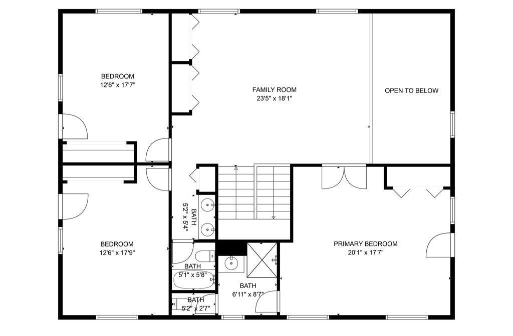
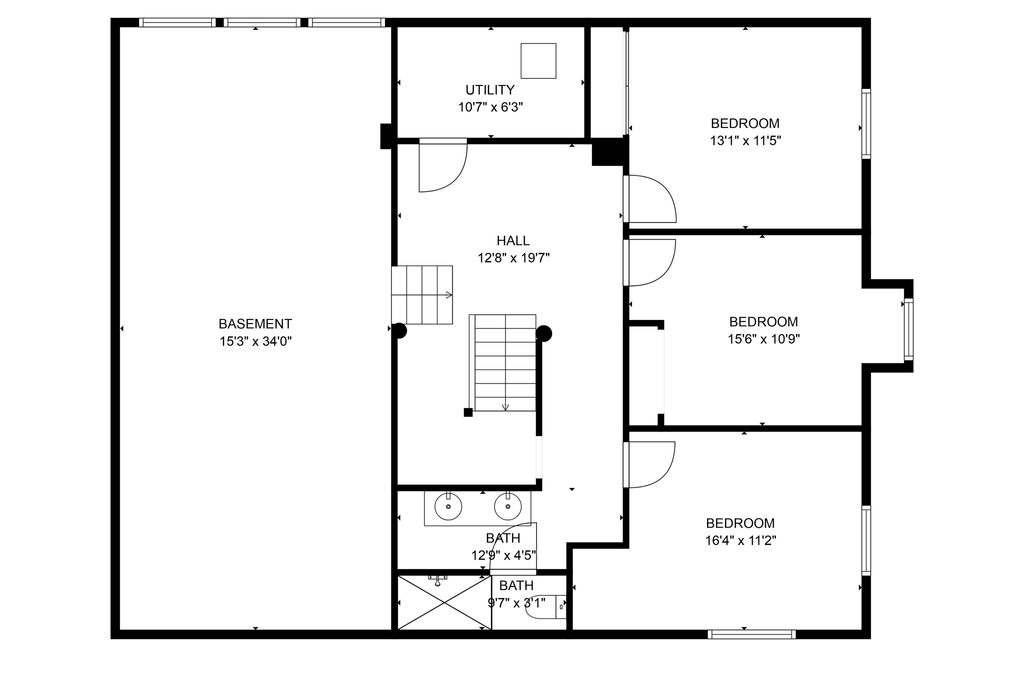
Welcome to Aspen Rise Retreat -Where privacy, peace, and adventure meet. Perched atop 118 private acres in stunning Avon, Utah, Aspen Rise Retreat is the ultimate mountain escape. Surrounded by groves of quaking aspens and endless sky, this over 4,000 sq. ft. cabin offers space to gather, unwind, and reconnect with nature. With 7 spacious bedrooms, 4 bathrooms, a large open kitchen, cozy living room, full mudroom and pantry, 2nd floor loft space, vaulted second floor ceilings, and a huge storage area/ gym with 30' ceilings for all your toys and gear-this cabin was built for hosting family and friends, or simply escaping the noise of everyday life. Positioned along the scenic route to Monte Cristo and backing up to the Cinnamon Creek Recreational Area, the opportunities for hiking, wildlife watching, snowmobiling, and solitude are endless. Located conveniently between Cache Valley and Huntsville, this is your perfect four-season getaway. Whether you're looking for a private family compound, a corporate retreat, or a legacy property-Aspen Rise Retreat offers the kind of tranquility and adventure that's getting harder to find. Square footage figures are provided as a courtesy estimate only and were obtained from floorplan scans and blueprints . Buyer is advised to obtain an independent measurement.
| DAYS ON MARKET | 232 | LAST UPDATED | 3/4/2026 |
|---|---|---|---|
| TRACT | LEGACY RANCH | YEAR BUILT | 2007 |
| COMMUNITY | Paradise; Avon | COUNTY | Cache |
| STATUS | Active | PROPERTY TYPE(S) | Lot/Land/Acreage |
| Elementary School | None/Other |
|---|---|
| Jr. High School | None/Other |
| High School | None/Other |
| ADDITIONAL DETAILS | |
| AIR | Ceiling Fan(s), None |
|---|---|
| AIR CONDITIONING | Yes |
| APPLIANCES | Disposal, Dryer, Gas Oven, Gas Range, Microwave, Oven, Portable Dishwasher, Range, Refrigerator, Washer |
| AREA | Paradise; Avon |
| BASEMENT | Daylight, Full, Yes |
| CONSTRUCTION | Cedar, Log |
| EXTERIOR | Balcony, Lighting |
| FIREPLACE | Yes |
| HEAT | Central, Fireplace Insert, Natural Gas, Propane, Space Heater, Wood, Wood Stove |
| INTERIOR | Granite Counters, Vaulted Ceiling(s) |
| LOT | 118.7 acre(s) |
| LOT DESCRIPTION | Private, Wooded |
| LOT DIMENSIONS | 0.0x0.0x0.0 |
| PARKING | RV Access/Parking |
| SEWER | Septic Tank |
| STORIES | 3 |
| STYLE | Cabin |
| SUBDIVISION | LEGACY RANCH |
| TAXES | 6784 |
| UTILITIES | Natural Gas Available, Natural Gas Connected, Electricity Available, Water Connected |
| VIEW | Yes |
| VIEW DESCRIPTION | Mountain(s), Valley |
| WATER | Private, Well |
MORTGAGE CALCULATOR
TOTAL MONTHLY PAYMENT
0
P
I
*Estimate only
| SATELLITE VIEW |
| / | |
We respect your online privacy and will never spam you. By submitting this form with your telephone number
you are consenting for Olivia
Pelton to contact you even if your name is on a Federal or State
"Do not call List".
Listed with KW Utah Realtors Keller Williams
The multiple listing information is provided by UtahRealEstate.com from a copyrighted compilation of listings. The compilation of listings and each individual listing are © 2026 UtahRealEstate.com, All Rights Reserved. The information provided is for consumers' personal, non-commercial use and may not be used for any purpose other than to identify prospective properties consumers may be interested in purchasing. Information deemed reliable but not guaranteed accurate. Buyer to verify all information.
This IDX solution is (c) Diverse Solutions 2026.

