|
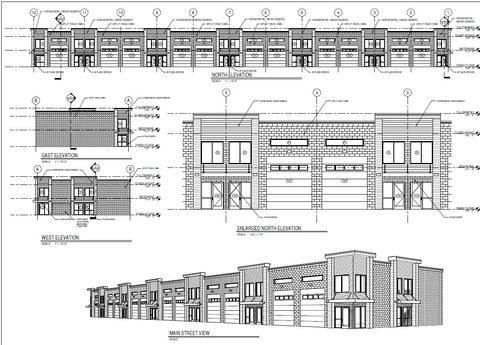
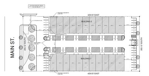
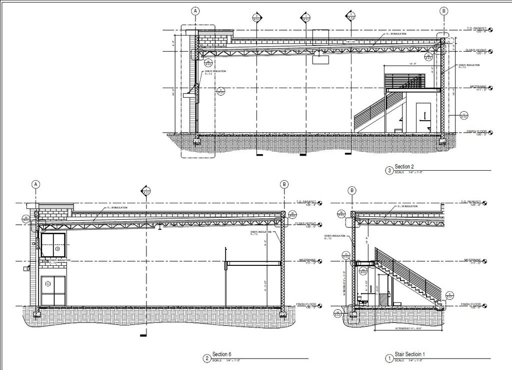
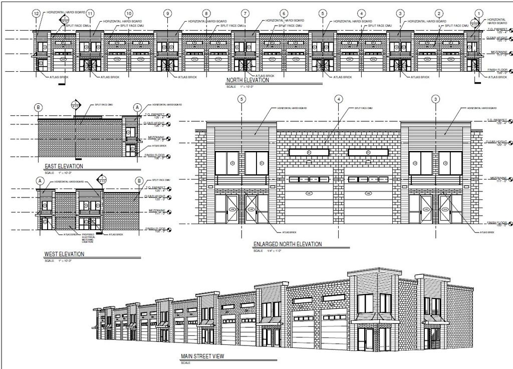
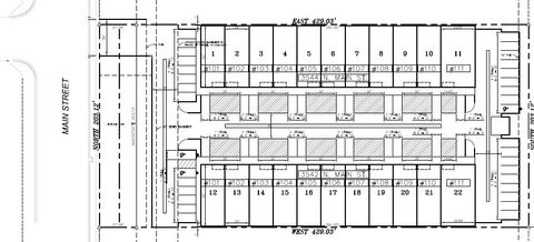
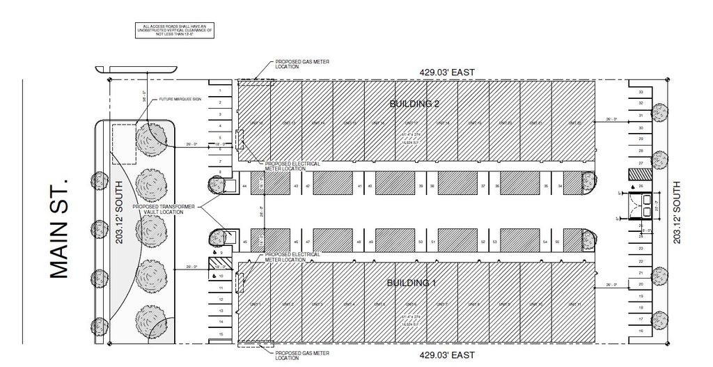
ONLY 1 UNIT REMAINING AT $450,000 and 1 UNIT REMAINING AT $550,000 Don't miss out on this incredible opportunity! The Landing is a premium Industrial Warehouse Development offering features you won't find in typical developments. Enjoy 20' ceiling heights, a spacious mezzanine, painted or insulated walls, a half bathroom, a mop sink, floor drains with water hookups in the bay area, and a striking exterior featuring honed block and Atlas brick with metal accents. Other standout amenities include 200 AMP electrical service, heating and AC for the entire open space, 12x14 overhead doors (with flush-mount openers, glass windows, insulation, and more), storefront windows and doors, and so much more! Reservations are now being accepted while final pricing is confirmed. For more information, visit www.TheLandinginfo.com CAM Fees and Taxes are not yet known. Square footage figures are provided as a courtesy estimate only and were obtained from building plans. Buyer is advised to obtain an independent measurement.
| DAYS ON MARKET | 312 | LAST UPDATED | 3/28/2025 |
|---|---|---|---|
| TRACT | THE LANDING | YEAR BUILT | 2025 |
| COMMUNITY | Sp Fork; Mapleton; Benjamin | COUNTY | Utah |
| STATUS | Active | PROPERTY TYPE(S) | Commercial |
| PRICE HISTORY | |
| Prior to Mar 7, '25 | $450,000 |
|---|---|
| Mar 7, '25 - Mar 28, '25 | $469,900 |
| Mar 28, '25 - Today | $450,000 |
| ADDITIONAL DETAILS | |
| AIR | Central Air |
|---|---|
| AIR CONDITIONING | Yes |
| AREA | Sp Fork; Mapleton; Benjamin |
| HEAT | Forced Air, Natural Gas |
| LOT | 2 acre(s) |
| LOT DIMENSIONS | 0.0x0.0x0.0 |
| SUBDIVISION | THE LANDING |
| ZONING | IND |
MORTGAGE CALCULATOR
TOTAL MONTHLY PAYMENT
0
P
I
*Estimate only
| SATELLITE VIEW |
| / | |
We respect your online privacy and will never spam you. By submitting this form with your telephone number
you are consenting for Olivia
Pelton to contact you even if your name is on a Federal or State
"Do not call List".
Listed with KW Westfield (Excellence)
The multiple listing information is provided by UtahRealEstate.com from a copyrighted compilation of listings. The compilation of listings and each individual listing are © 2025 UtahRealEstate.com, All Rights Reserved. The information provided is for consumers' personal, non-commercial use and may not be used for any purpose other than to identify prospective properties consumers may be interested in purchasing. Information deemed reliable but not guaranteed accurate. Buyer to verify all information.
This IDX solution is (c) Diverse Solutions 2025.


